Direccion

Máximo Paz 91 - Monte Grande

Telefono

(011) 4281-9994 || (011) 2145-4542

Whatsapp

1141873440

Volver

Volver al listado

Oportunidad

Oportunidad: PH en Monte Grande con Proyecto Avanzado

direccion González Gowland 206, Monte Grande

Venta

USD 55.000

Características
tipo Casas
ambiente 2 ambientes
baños 1 baño
patio Con patio
cochera cochera
superficie Sup. cubierta 70m2
superficie Sup. total 123m2
Acerca de la propiedad

González Gowland 206, entre Sardi y Rebizo – Monte Grande
PH al fondo con acceso por pasillo común, desarrollado en una sola planta, ideal para terminar a tu gusto.
La unidad cuenta con una superficie cubierta estimada de 70 m² según plano de arquitectura.
La construcción presenta un buen estado estructural y un avance de obra aproximado del 65–70 %, por lo que aún requiere terminaciones, ofreciendo una excelente oportunidad para personalizar los ambientes y agregar valor.
Oportunidad para vivienda o inversión en zona tranquila y de buen acceso

Cuenta con escritura!

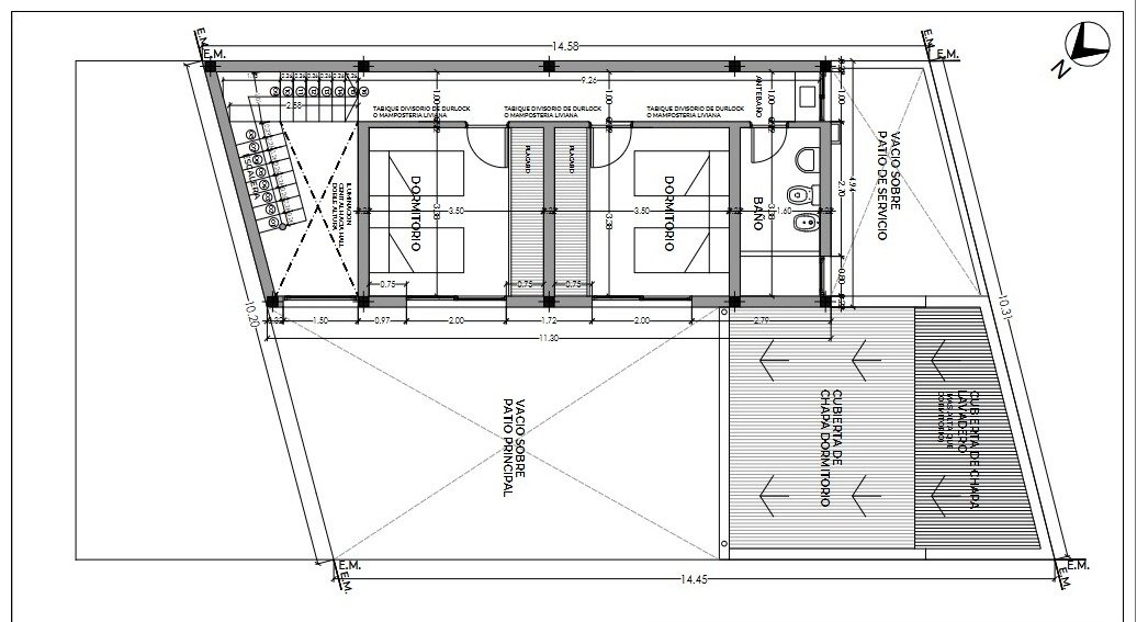
IMPORTANTE! En la última imagen se incluye un plano del proyecto original de la vivienda, para que puedas visualizar cómo podría quedar la distribución final y orientarte en las terminaciones.
 

Ubicación
Consultar por propiedad
Oportunidad: Ph En Monte Grande Con Proyecto Avanzado
Venta
USD 55.000

Comunicate con nosotros

error

error

error

error


Propiedades relacionadas
Chatea con nosotros situacion
contacto No dudes en contactarte con nosotros contacto
Whatsapp WHATSAPP telefono LLAMAR
Comunicate con nosotros

error

error

error

error